1
2
3
4
5
6
7
8
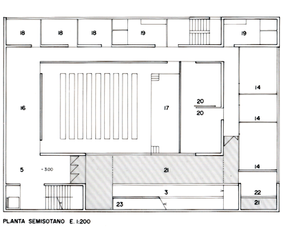
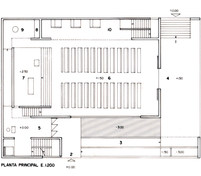
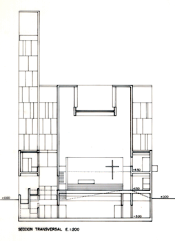
ver imágenes